solgt
solgt
Chr. Winthers Vej 20, 6000 Kolding
Yderst velholdt og rummelig villa. Beliggende på lukket vænge i Seest og med skøn udsigt ud over
området og Kolding by. Kort afstand til både skole, indkøb, naturstier og grønne områder.
Villaen er med fuld underetage, som fremtræder i virkelig god boligstandard - højt til loftet, fine
værelser og direkte udgang til lukket have og terrasse. Hertil en arkitekttegnet kvalitetsudestue med
pragtfuld lysindfald, gulvvarme, dobbeltdør med udgang til svalegang og flot udsigt over byen - i alt
257 veldisponerede m2.
Villaen er godt indrettet med lyse værelser (5 i alt), dejligt spisekøkken i direkte forbindelse til
udestuen, hyggelig opholdsstue med brændeovn og to komplette badeværelser.
Værelsesfordelingen på begge etager giver ideelle forhold for børnefamilien, hvad enten det er små
børn eller teenagere, som i underetagen også har mulighed for egen stue/spillerum og et fint lille
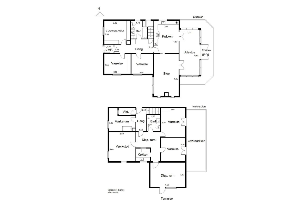
køkken. For detaljeret oversigt over rumfordelingen, henvises til plantegningen.
Yderst velholdt og rummelig villa. Beliggende på lukket vænge i Seest og med skøn udsigt ud over
området og Kolding by. Kort afstand til både skole, indkøb, naturstier og grønne områder.
Villaen er med fuld underetage, som fremtræder i virkelig god boligstandard - højt til loftet, fine
værelser og direkte udgang til lukket have og terrasse. Hertil en arkitekttegnet kvalitetsudestue med
pragtfuld lysindfald, gulvvarme, dobbeltdør med udgang til svalegang og flot udsigt over byen - i alt
257 veldisponerede m2.
Villaen er godt indrettet med lyse værelser (5 i alt), dejligt spisekøkken i direkte forbindelse til
udestuen, hyggelig opholdsstue med brændeovn og to komplette badeværelser.
Værelsesfordelingen på begge etager giver ideelle forhold for børnefamilien, hvad enten det er små
børn eller teenagere, som i underetagen også har mulighed for egen stue/spillerum og et fint lille
køkken. For detaljeret oversigt over rumfordelingen, henvises til plantegningen.
Mæglerhuset Kokborg & Co.
Hvordan ser din drømmebolig ud
Tilmeld dig vores køberkartotek og få besked, når vi får en bolig til salg, der matcher dine kriterier.
Hvis du har tilmeldt dig og ikke længere ønsker at være i køberkartoteket, send da en mail til 6000@kokborg.dk.



